Sie haben 0 Produkte in Ihrem Warenkorb
Gesamte Wohnfläche: 194,94 m²
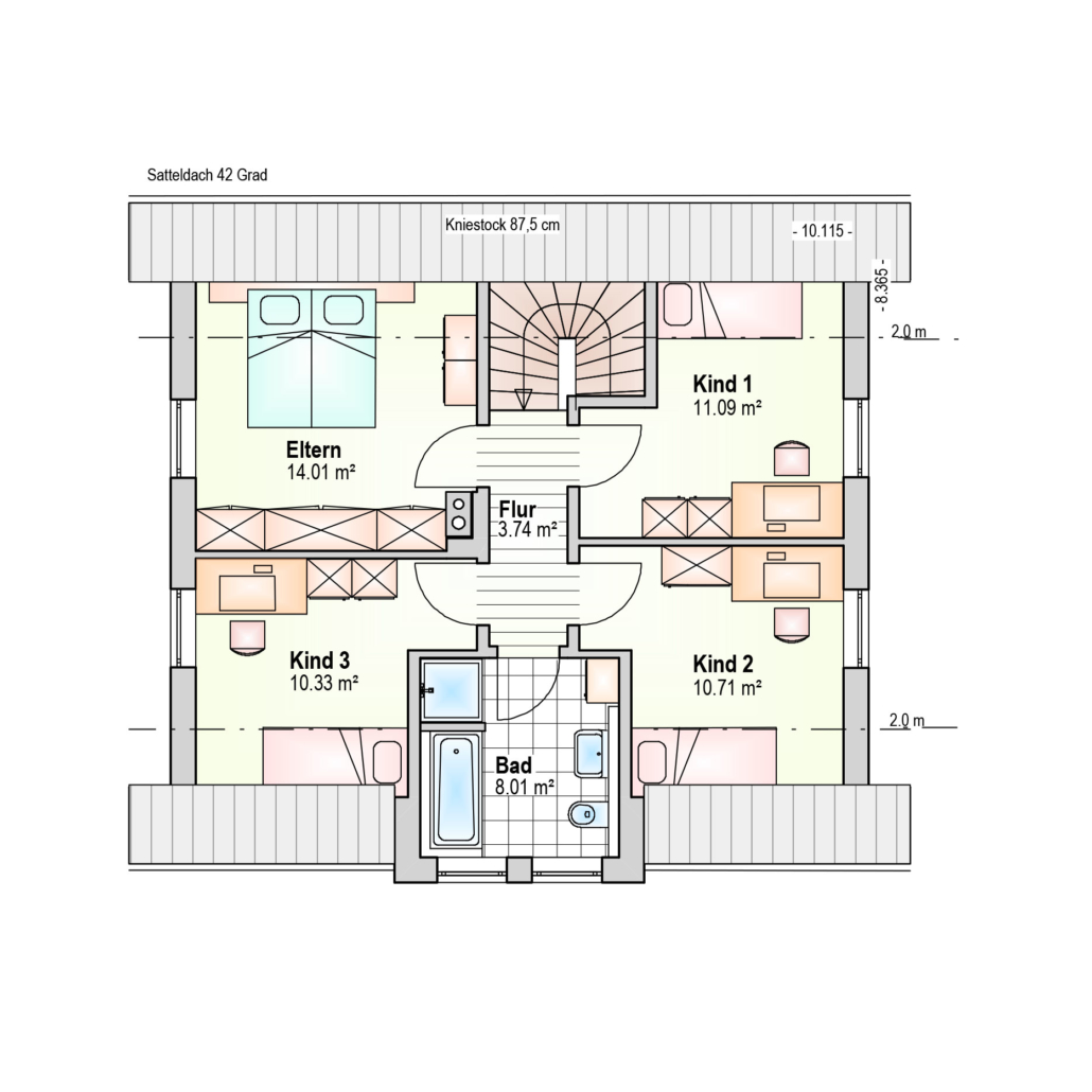
Mit dem unverwechselbaren Satteldach-Erker und den drei Kinderzimmern bringt das Haus Philipp alles mit, was eine große Familie benötigt. So entsteht eine behagliche Wohnatmosphäre und das Dachgeschoss ist optional auch mit zwei großzügigen Kinderzimmern sehr variabel.
Mit dem unverwechselbaren Satteldach-Erker und den drei Kinderzimmern bringt das Haus Philipp alles mit, was eine große Familie benötigt. So entsteht eine behagliche Wohnatmosphäre und das Dachgeschoss ist optional auch mit zwei großzügigen Kinderzimmern sehr variabel.
| Dach | Satteldach |
|---|---|
| Wohnfläche | 194,94 m² |
| Besonderheiten | Einfamilienwohnaus, 87,5 cm Kniestock, 42° Satteldach |