Skip to content

In Rögen entsteht ein Neubaugebiet nur wenige Autominuten von Coburg entfernt.

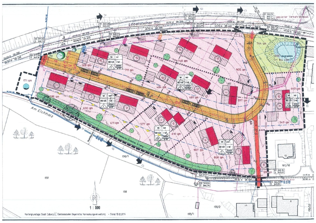
BAUGEBIET „AM EICHHOLZ“ IN RÖGEN

Direkt im Anschluss an die bestehende Wohnbebauung in Coburg – Rögen entsteht im Herbst 2020 das Baugebiet „Am Eichholz“. Es zeichnet sich einerseits durch seine Nähe zur Natur aus, andererseits liegt das Baugebiet nur wenige Kilometer vom Stadtzentrum Coburgs entfernt. Für alle die richtige Wohnlage, die stadtnah wohnen wollen und gleichzeitig die Ruhe der Natur suchen.

Verkaufspreis: 139,00 €/m²