Skip to content

In einem gerade erschlossenen Neubaugebiet in Rödental, in bester Lage, erstellen wir 4 moderne Reihenhäuser nach enegetisch neusten Maßstäben im KfW 40 QNG Standard.

Reihenhäuser in Rödental

mit KfW 40 QNG

Beschreibung:
Mit dem Baugebiet Living-Glas in Rödental schafft die Firma Schopf & Teig ein Wohnquartier, dass sowohl junge, wie auch ältere Generationen anspricht. Hier, im Anschluss an die bestehende Bebauung, realisiert die Schopf & Teig GmbH 4 moderne Reihenhäuser nach dem neusten Standard der GEG 2023.
Das Haus besitzt den KfW 40 Standard, um  auch die Nebenkosten gering zu halten. Stellvertretend stehen hierfür das 42,5 cm hochgedämmte starke Ziegelaußenmauerwerk, die dezentrale Lüftungsanlage, sowie die Fernwärmeanbindung der Stadtwerke Rödental.
Das Haus ist komplett mit Fußbodenheizung ausgestattet. Auch ist eine Photovoltaikanlage vorhanden. Der Endenergiebedarf des Gebäudes nach Bedarfausweis beträgt 36,10 kWh/(m²a), Klasse A.

Lage:
Rödental ist eine Stadt mit ca. 13.000 Einwohnern, nordöstlich von Coburg. Es gibt hier unzählige Erholungs- und Ausflugsmöglichkeiten. Rödental ist durch die Autobahn A73 sowohl nach Süden,  wie auch nach Norden hervorragend angebunden.  In dem Rödentaler Stadtteil Oeslau, erschließen wir auf dem Gelände einer ehemaligen Glaskugelfabrik ein Wohnquartier. Dort sollen drei Mehrfamilienhäuser, vier Reihenhäuser und vier Doppelhäuser entstehen.
Von dort aus erreicht man in wenigen Minuten das Schloss Rosenau mit dazugehörigem Park, hier kann man wunderschöne Spaziergänge unternehmen. In unmittelbarer Nähe zu der neuen Wohnbebauung findet man auch zahlreiche Restaurants und Cafés. Auch ein Hallenbad ist in der Nähe, ebenso sind zahlreiche Einkaufsmöglichkeiten vorhanden. Für die jungen Familien ist es besonders interessant, da es Schulen und Kindergärten im unmittelbaren Umfeld gibt.

Reihenhaus 1

  • 42,5 cm hochgedämmtes Außenmauerwerl
  • Wohnfläche gesamt: ca. 150,9 m²
  • Zimmer: 5
  • Fußbodenheizung im gesamten Haus
  • Fernwärmeanschluss
  • Photovolaikanlage
  • KfW 40 QNG
  • Terrasse ca.19,5 m²
  • moderner Baustil
  • Bedarfsausweis mit Endenergie: 34,90 kWh(m²a), Klasse A

Reihenhaus 1 (Ahornweg 10): verkauft

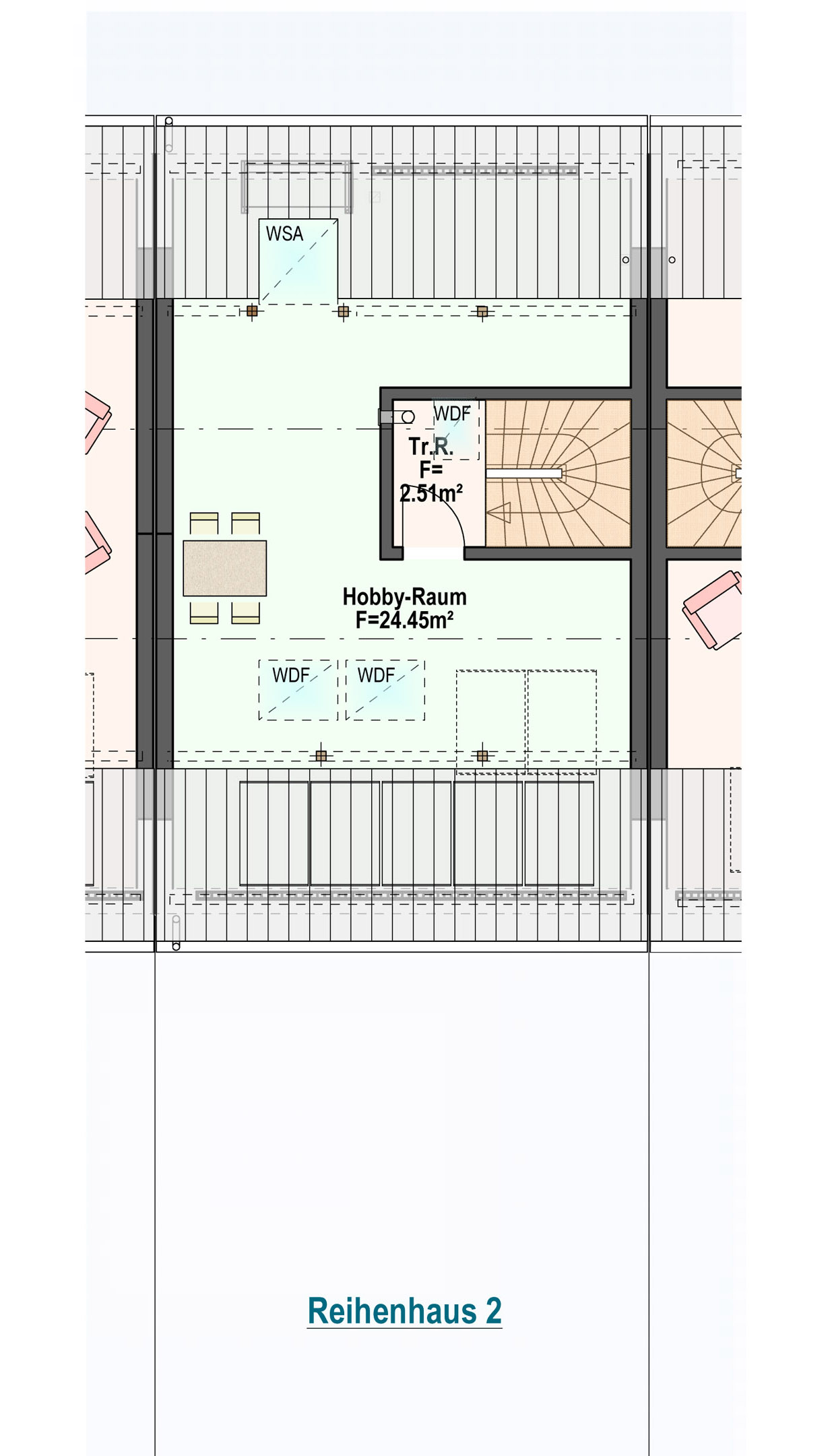
Reihenhaus 2

  • 42,5 cm starkes hochgedämmtes Außenmauerwerk
  • ca. 154,72 m² Wohnfläche
  • Zimmer: 5
  • Fußbodenheizung im gesamten Haus
  • Fernwärmeanschluss 
  • Photovoltaikanlage
  • KfW 40 QNG
  • Terrasse: ca. 20,44 m²
  • moderner Baustil
  • Bedarfsausweis mit Endenergie: 32,00 kWh(m²a), Klasse A

Reihenhaus 2 (Ahornweg 12): 503.000,-€

Reihenhaus 3

  • 42,5 cm starkes hochgedämmtes Außenmauerwerk
  • ca. 154,74 m² Wohnfläche
  • Zimmer: 5
  • Fußbodenheizung im gesamten Haus
  • Fernwärmeanschluss 
  • Photovoltaikanlage
  • KfW 40 QNG
  • Terrasse: ca. 20,44 m²
  • moderner Baustil
  • Bedarfsausweis mit Endenergie: 31,90 kWh(m²a), Klasse A

Reihenhaus 3 (Ahornweg 14): 504.400,-€

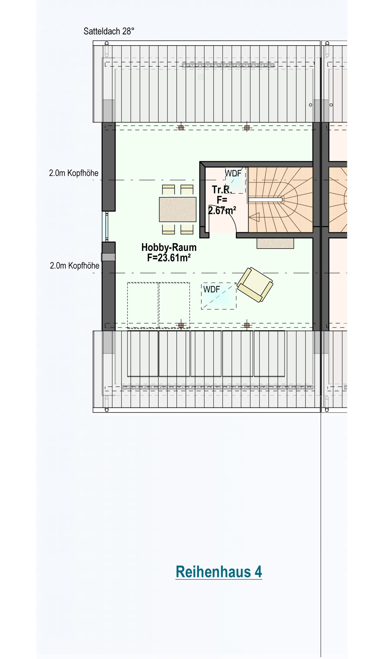
Reihenhaus 4

  • 42,5 cm hochgedämmtes Außenmauerwerl
  •  ca. 150,94 m² Wohnfläche
  • Zimmer: 5
  • Fußbodenheizung im gesamten Haus
  • Fernwärmeanschluss
  • KfW 40 QNG
  • Terrasse ca.19,51 m²
  • moderner Baustil
  • Bedarfsausweis mit Endenergie: 35,70 kWh(m²a), Klasse A

Reihenhaus 4 (Ahornweg 16): 558.600,-€